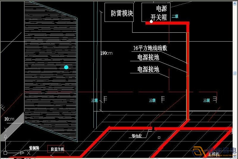
在工廠機房建設綜合性防雷接地系統中,不論是防雷接地、避雷網、避雷帶等,還是各種防雷電磁感應的 SPD,能夠起到避雷功效重要的環節之一,必須有較好的防雷接地線。在特定的土壤層和氣候條件下,較好的方法是根據裝置的形狀,以及接地體的材料和尺寸,采取相應的減阻措施??茖W合理計算方法可得到滿足要求的各種信息。設計科學可降低人工成本、物力資源。自然,數值和實際會有一定差距,差異的尺寸在于接地電阻的準確度與土層均勻水平等多種因素。工廠機房防雷接地線裝置包括以下部分:
1)雷電接收裝置:直接和間接接收雷電的金屬棒(接閃帶),如防雷接地、避雷帶(網)、架空地線及高壓避雷器等。
2)電線接頭(防雷引下線):雷電接收裝置與接地裝置連接使用的電導體。
3)接地裝置:電線接頭和接地體之和。較好的接地裝置是系統穩定性、安全性、可靠運行的前提。
以上就機房防雷接地的作用原來是這樣??!的簡單介紹, 如果您有企業弱電安裝相關的需求, 需要的朋友可聯系:13693486017或者在線客服咨詢更多安防監控 的介紹,用007弱電讓數字基礎設施更智能。